(204) 751-0822

Homes By Design » Projects » The Vrooman

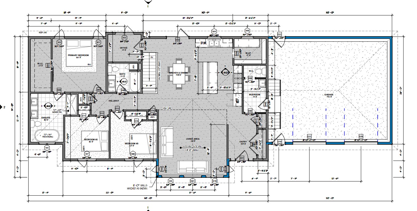
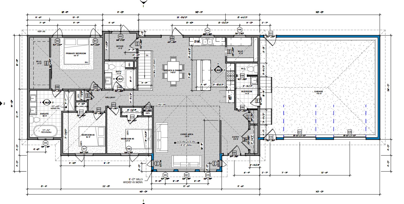
The Vrooman

1,786 Sqft | 3 bedroom | 1 office | 2.5 bathroom

plan description

More information coming soon!

Skip to content