(204) 751-0822

Homes By Design » Projects » The Pleasant Dawn

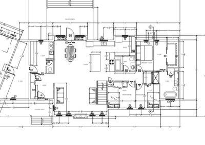
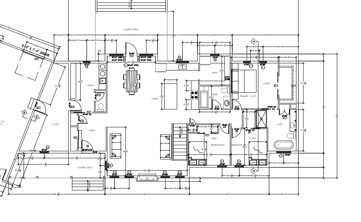
The Pleasant Dawn

2005 Sqft | 3 bedroom | 2.5 bathroom

plan description

More information coming soon!

Skip to content