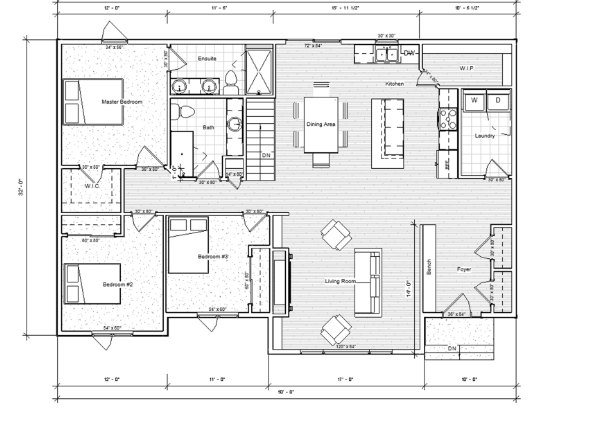
Homes By Design » Projects » Pearl Pearl 1600 Sqft | 3 Bedroom | 2 bathroom GET A QUOTE plan description More information coming soon!