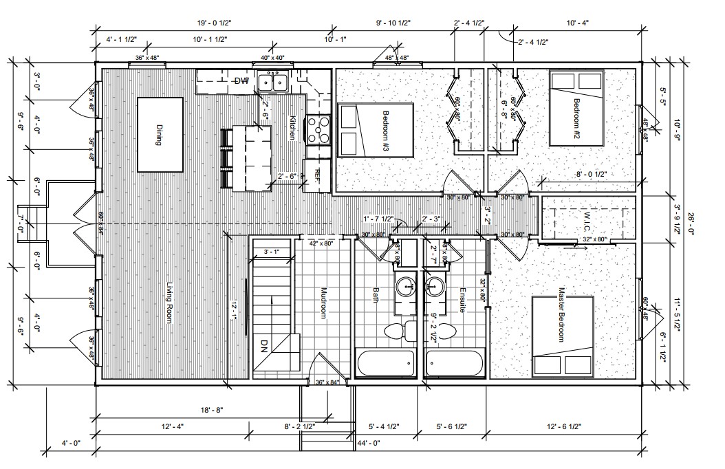
Homes By Design » Projects » Garnet Garnet 1,144Sqft | 3 bedroom | 2 bathroom GET A QUOTE plan description More information coming soon!